Buscar
Menu

Terreno em Campo largo, no bairro Vila conceição
Referência TEC0003-JM-RIC

Sobre o imóvel

Valor R$ 450.000,00
Simule um financiamento

Galeria

Ver em tela cheia

Um pouco mais sobre o imóvel

Terreno para chácara em condomínio fechado na Região Metropolitana de Curitiba, localizado na Rua Araruna, número 90, na Vila Conceição em Campo Largo/PR.

Área privativa de 1.060,00 m²

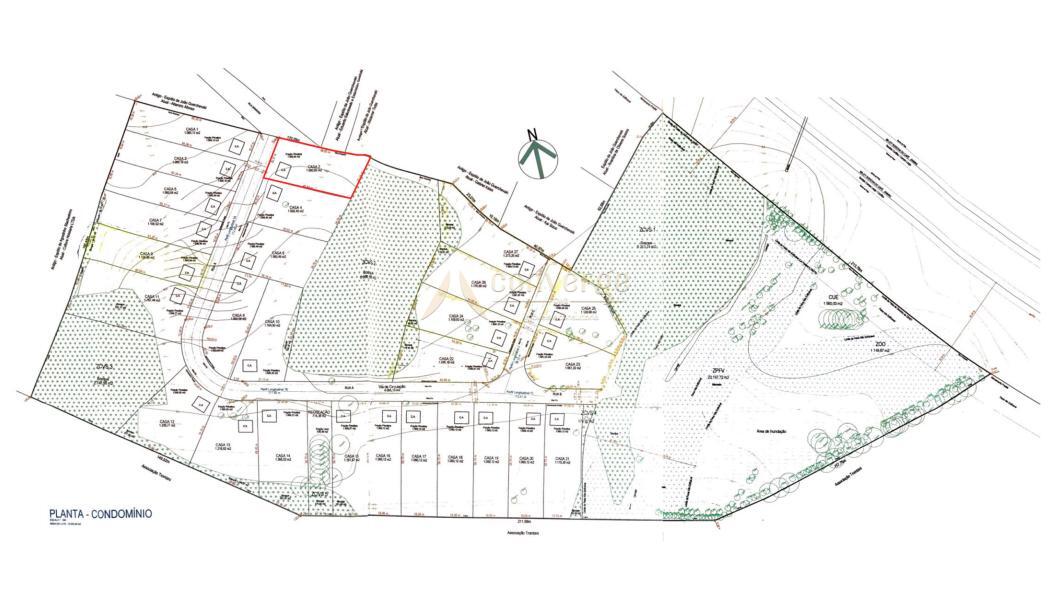
Anuncio referente ao Casa 02 do condomínio, destacada na imagem do mapa em branco.

A infraestrutura do condomínio conta com portaria, asfalto para acesso de todos os imóveis, lago e futuramente um espaço de lazer próximo ao lago.

Agende a sua visita!

Ref.: TEC0003-JM

*** Os valores podem ser alterados sem aviso prévio

CRECI-PR 25.221F

Detalhes do Imóvel

ReferênciaTEC0003-JM-RIC
EndereçoRua Araruna,
BairroVila Conceição
MunicípioCampo Largo
UFPR
Tipo de usoresidencial
Valor totalR$ 450.000,00


Localização

Localização: Rua Araruna - Vila Conceição - Campo largo/PR

Academias
Escolas
Hospitais
Farmácias
Padarias
Shoppings
Bancos

Gostou do Imóvel?

Entre em contato para mais informações

Prefiro contato via:


Fale com a Converge CWB Imóveis e Consultoria

Entre em contato para mais informações

Compartilhe este imóvel com seus amigos

Contatos

(41) 99937-3959

Endereço

Rua José Alcides de Lima, 1153 - Novo Mundo - Curitiba - PR - Ver no Mapa

Sites para imobiliárias

Pergunte, solicite informações ou reclame.
Pode elogiar também!